Адрес: Новочебоксарск, улица Воинов Интернационалистов, позиция 21 на карте, подробнее о доме
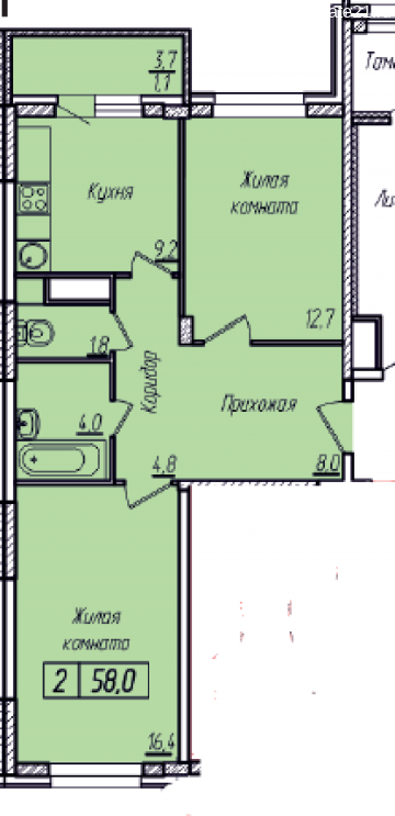
Распашонка в новом районе города. Санузел раздельный. Продажа от юридического лица. Не торцевая.

← предыдущее Объявление № 260978 следующее →
Адрес: Новочебоксарск, улица Воинов Интернационалистов, позиция 21 на карте, подробнее о доме
Распашонка в новом районе города. Санузел раздельный. Продажа от юридического лица. Не торцевая.
Ошибка
|
||