2-комнатная квартира Мичмана Павлова 14

Добавить объявление в

← предыдущее Объявление № 279877 следующее →

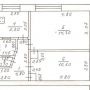
Адрес: Чебоксары, СЗР, улица Мичмана Павлова, 14 на карте, подробнее о доме

Параметры объекта недвижимости
Количество комнат 
2
Этаж 
1
Всего этажей 
5
Тип дома 
кирпичный
Год постройки 
1973г.
Общая площадь, м² 
39

Продается 2хкомнатная квартира по цене однокомнатной от собственника в СЗР. Без оплаты услуг и комиссий. В микрорайоне с развитой инфраструктурой: рядом детские сады, школы. Без колонки, отопление центральное, туалет и ванная в современном кафеле. Натяжной потолок. Пластиковые окна, новая входная дверь. 1ый этаж высокий, двор тихий. Угловая квартира. Без долгов и обременений, чистая продажа, в собственности более 3 лет.2 взрослых собственника,свободна от проживания и от мебели. Торг.

Цена без комиссии
1 640 000 Р
Услуги эксперта  
35 000 Р
Цена за м² 
42 051 Р
Оценочная стоимость 
1 519 000 Р
Рекомендуем уменьшить цену объекта
Контакты

+7 (927) 6674711

Пожалуйста, сообщите автору, что Вы нашли это предложение на сайте Эстейт21.ру

Отправить ЛС Cообщение на e-mail

Поможем оформить и получить кредит в нашем офисе за 30 минут.


Еще предложения по сходной цене

1-комнатная квартира Солнечный 18, этаж 1 из 14

бульвар Солнечный 18,1 комн, 33 м2, 1 Этаж
1 480 000 Р.

1-комнатная квартира Филиппа Лукина 3, этаж 12 из 13

Филиппа Лукина 3,1 комн, 33 м2, 12 Этаж
1 480 000 Р.

1-комнатная квартира Розы Люксембург 1, этаж 7 из 9

Розы Люксембург 1,1 комн, 42 м2, 7 Этаж
1 480 000 Р.

2-комнатная квартира Эгерский 59, этаж 9 из 9

Эгерский бульвар 59,2 комн, 42 м2, 9 Этаж
1 480 000 Р.

1-комнатная квартира Солнечный 20к1, этаж 8 из 12

бульвар Солнечный 20 корпус 1,1 комн, 35 м2, 8 Этаж
1 480 000 Р.

1-комнатная квартира Академика В.Н.Челомея 3, этаж 2 из 10

Академика Челомея 3,1 комн, 41 м2, 2 Этаж
1 480 000 Р.