Адрес: Чебоксары, СЗР, проспект Максима Горького, 31 на карте, подробнее о доме
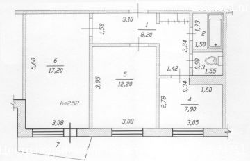
Продается солнечная, уютная двухкомнатная квартира в отличном состоянии с современным ремонтом. Пластиковые окна, межкомнатные двери из массива дерева, санузел раздельный в кафеле, два вместительных встроенных шкафа-купе, также остается кухонный гарнитур, гардины и люстры. Входная металлическая дверь Гардиан, общая дверь на две квартиры металлическая, домофон. В шаговой доступности магазины, школы, детские сады, аллея Гузовского, Кооперативный институт, остановки общественного транспорта.Один собственник. Агентства просьба не беспокоить.














