Адрес: Чебоксары, ЮЗР, улица Чернышевского, 6 на карте, подробнее о доме
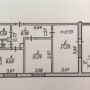
Прекрасный вариант 2-комнатной квартиры в тихом и зелёном районе города! Квартира находится в Юго-западном районе города Чебоксары по адресу: ул. Чернышевского, 6 на 8-м этаже 9-ти этажного панельного дома. Общая площадь квартиры 50,5 кв. м.(с лоджией 58,6 кв.м.). Кухня 8,6 кв. м, комнаты 12,2 и 17,2 кв.м., лоджия 8,1 кв. м. застеклена. Квартира в среднем состоянии, требует небольшого косметического ремонта. Окна квартиры выходят на разные стороны. Все комнаты правильной формы. Сан. узел раздельный, в кафеле. Имеются парковочные места под автомобиль. Хорошая транспортная доступность на все виды городского транспорта. Семье с детьми будет интересно наличие детских садов, школ. Рядом детская больница, а также большое количество магазинов и отделений банков. Всё это находится рядом с остановкой общественного транспорта. Удобная транспортная развязка, в разные части города.





























