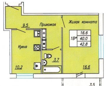
Адрес: Новочебоксарск, улица Советская, 5 на карте, подробнее о доме
квартира напрямую от подрядчика, оформлена по договору ДДУ. срок сдачи - 3 квартал 2018г.

← предыдущее Объявление № 262963 следующее →
Адрес: Новочебоксарск, улица Советская, 5 на карте, подробнее о доме
квартира напрямую от подрядчика, оформлена по договору ДДУ. срок сдачи - 3 квартал 2018г.
Ошибка
|
||