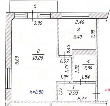
Адрес: Чебоксары, СЗР, улица Мичмана Павлова, 11 на карте, подробнее о доме
Продается однокомнатная квартира.Свежая беловая отделка, пластиковые окна, пол деревянный, новая газовая колонка (горячая вода круглый год).Окна выходят на обе стороны. В шаговой доступности: детские сады, школа, спортивный комплекс, обновленный стадион, магазины, почта, аллеи для прогулок (парк "Роща"), остановка общественного транспорта. Собственник один, более 5 лет. Торг.














