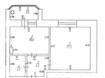
Продам черновой отделки однокомн.квартиру с индивидуальным отоплением, площадью 39,1/17,3/10,6 кв.м., не торцевая, большая прихожая, пластиковые окна, биметаллические радиаторы отопления, застекленная лоджия, санузел совместно. Один собственник, ключи можем передать в день сделки. На сделку можем выйти в любой день. Рядом остановка, тихое место, хорошие соседи, во дворе имеется большая парковка и детская площадка. Документы к продаже готовы, просмотр в любое время. Рассматриваем любую форму оплаты. ЧИСТАЯ ПРОДАЖА.













